Cold Storage Shared Hub Proposed to Support East Side Growers

A shared hub could help small growers store and distribute produce more efficiently.

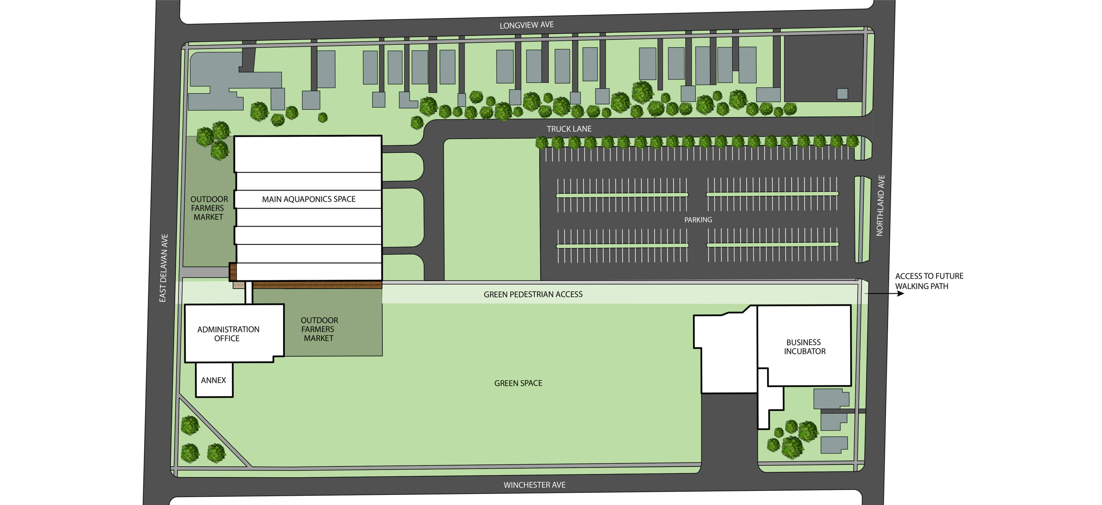
Solving the logistics bottleneck

Growers and market organizers are exploring a shared cold-storage hub to reduce spoilage, coordinate deliveries, and allow more frequent restocking at neighborhood sites.

Supporters say logistics is often the difference between a pilot and a permanent program.

Potential benefits

  • Less waste and better quality
  • Easier aggregation for larger buyers
  • More stable weekly market supply

Partners are evaluating possible locations and operating models.